Anfrage wurde erfolgreich gesendet

Luxus Immobilien Istrien, Zum Verkauf eine Wohnung in Umgebung von Poreč

  • ID :
    946241
  • Stadt :
    POREČ
  • Fläche :
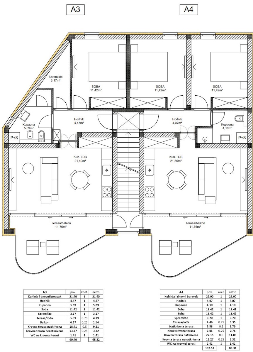
    65 m2
  • Agentur :
    REN nekretnine

248.000 €

BESCHREIBUNG

Wohnung A3 haben insgesamt 65,22 m2, Die Wohnung befindet sich im erste Stoch + Dachterrasse, im Bau, nur 5 min. (2500m) vom Meer und schönen Stränden, 5 min. (500m) sind Sie vom Stadtzentrum. Die Wohnung besteht aus Küche/Wohnzimmer/Esszimmer, Schlafzimm

ANFRAGE SENDEN