Anfrage wurde erfolgreich gesendet

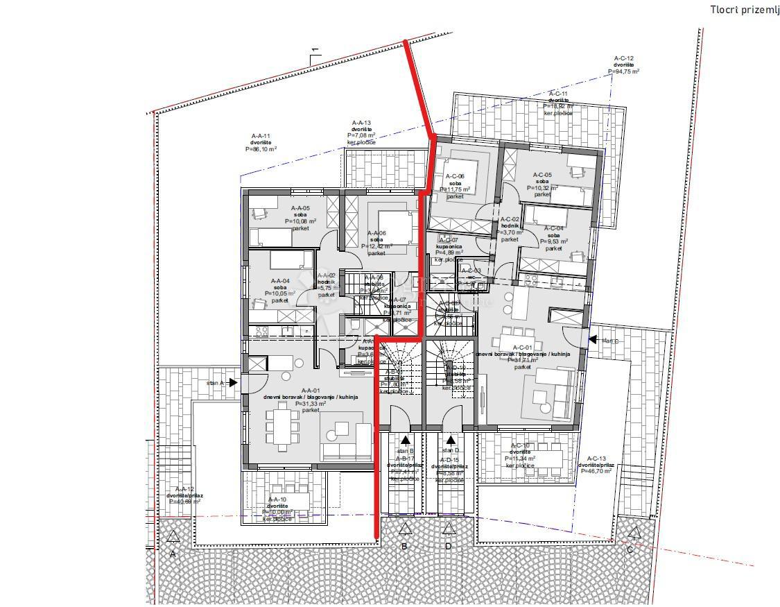
Wohnung Poreč, 76,96m2

  • ID :
    1140856
  • Stadt :
    POREČ
  • Fläche :
    96 m2
  • Agentur :
    Dogma nekretnine d.o.o.

435.000 €

BESCHREIBUNG

Stellen Sie sich vor: Eine Erdgeschosswohnung mit großem Garten, nur einen Schritt von der Stadt entfernt, mit Meerblick und privatem Parkplatz. Und das Beste daran? Sie kaufen von einer juristischen Person, das heißt Sie sind von der Grundsteuer befreit!

ANFRAGE SENDEN