Anfrage wurde erfolgreich gesendet

Porec, im Bau befindliche Wohnung von 85 m2 mit einem Garten von 147 m2, 1500 m vom Meer entfernt

  • ID :
    1109027
  • Stadt :
    POREČ
  • Fläche :
    85 m2
  • Agentur :
    HABITO

339.000 €

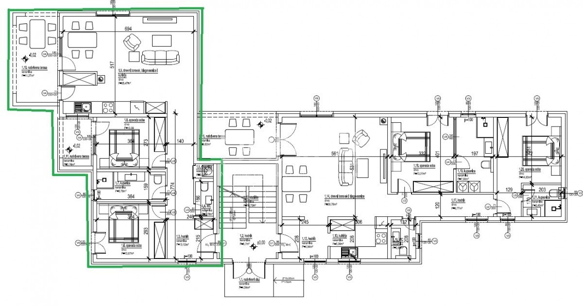
BESCHREIBUNG

Poreč, in einer ruhigen Stadtgegend, steht eine im Bau befindliche Wohnung mit einer Fläche von 85,14 m² zum Verkauf, bestehend aus Wohnzimmer, Küche, Esszimmer, 2 überdachten Terrassen, Flur, 2 Schlafzimmer, Abstellraum, Badezimmer und Toilette. Die Woh

ANFRAGE SENDEN