Upit je uspješno poslan

Luksuzni dvoetažni stan sa bazenom u dvorištu

  • ID :
    942557
  • Grad :
    POREČ
  • Površina :
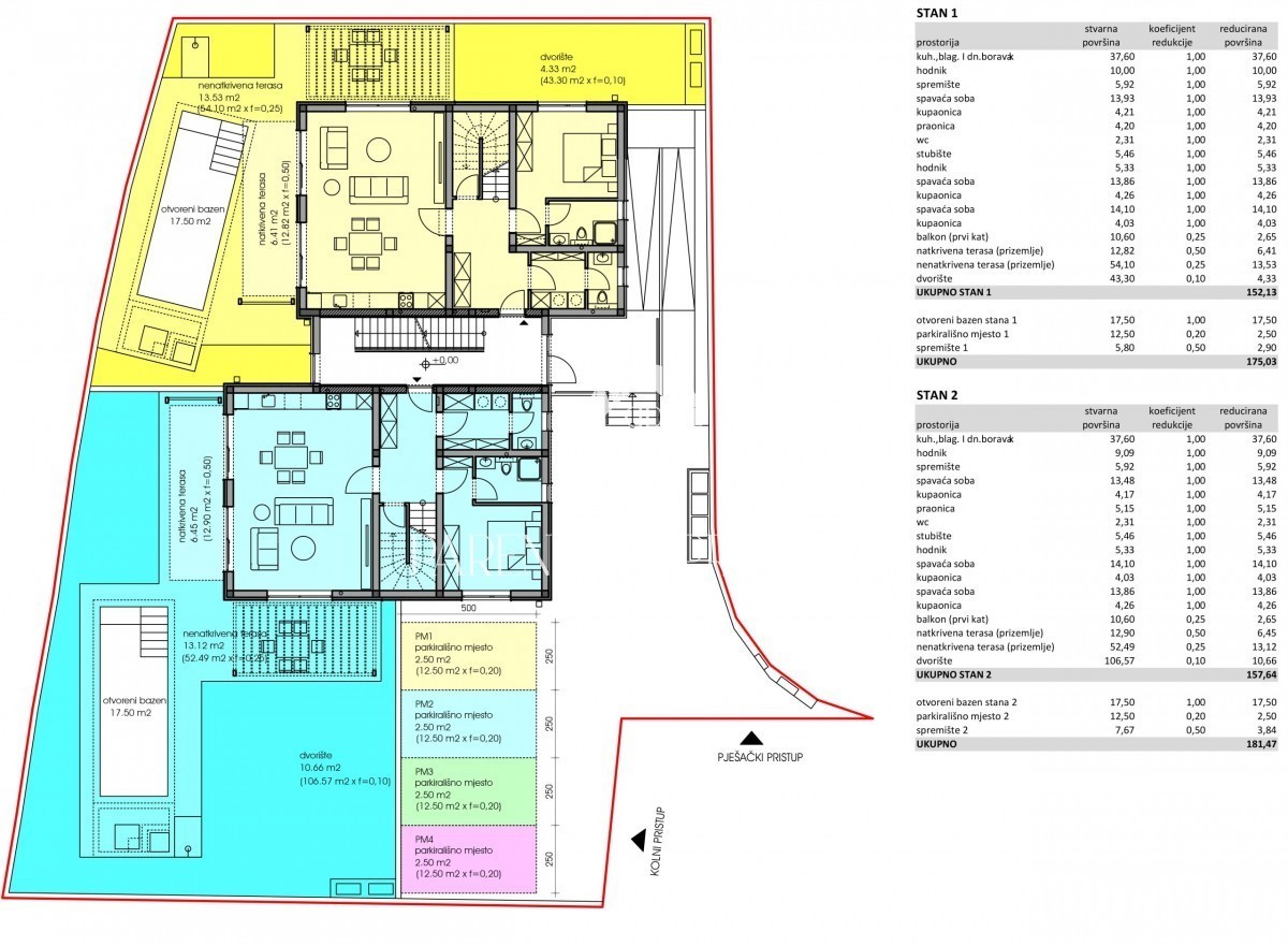
    152 m2
  • Agencija :
    PARENTIUM PREMIUM REAL ESTATE

541.200 €

OPIS

Istra, Poreč okolica U okolici grada Poreča nedaleko od uređenih plaža u manjem turističkom mjestu smjestio se ovaj luksuzni stan na dvije etaže ukupne površine od 152,13m2 sa bazenom u dvorištu. STAN 1 (TLOCRT ŽUTE BOJE) Stan se proteže se na dvije etaž

POŠALJITE UPIT