Stan br.1 prizemlje sa vrtom, u gradnji,visoke kvalitete,Poreč
OPIS
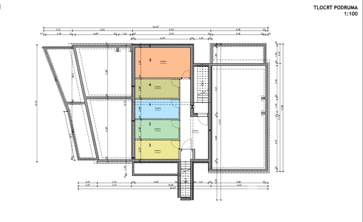
Stan br. 1 (označen sa plavom bojom)u prizemlju,sa vrtom,u gradnji,visoka kvaliteta Dvije spavaće sobe,tri kupatila,kuhinja,blagovaona,dnevni boravak,ostava,terasa
Stan br. 1 (označen sa plavom bojom)u prizemlju,sa vrtom,u gradnji,visoka kvaliteta Dvije spavaće sobe,tri kupatila,kuhinja,blagovaona,dnevni boravak,ostava,terasa