Upit je uspješno poslan

Stan na jedinstvenoj lokaciji 200m od mora, Poreč, Istra

  • ID :
    1141511
  • Grad :
    POREČ
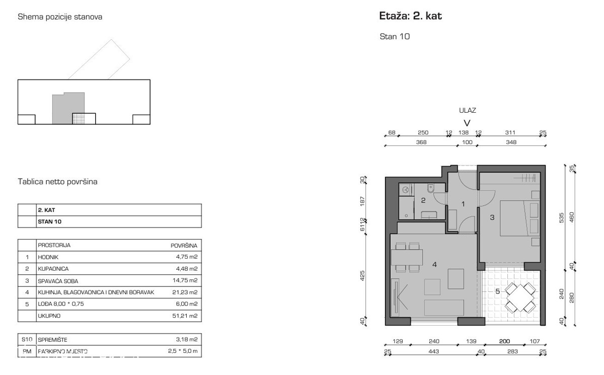
  • Površina :
    51 m2
  • Agencija :
    Mediterra Real Estata Agency

270.000 €

OPIS

Prodaje se stan na jedinstvenoj lokaciji na samo par minuta hoda od uređene plaže. Nalazi se na drugom katu moderne zgrade i sastoji se od spavaće sobe, kupaonice i velikog dnevnog boravka s izlazom na terasu. Stanu također pripada spremište od 3,18 m2 i

POŠALJITE UPIT