Upit je uspješno poslan

Stan u prizemlju,u izgradnji,Poreč

  • ID :
    1130460
  • Grad :
    POREČ
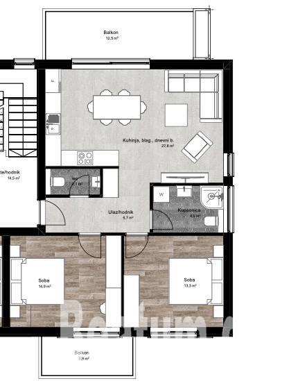
  • Površina :
    71 m2
  • Agencija :
    Beatum d.o.o.

248.500 €

OPIS

Stan u prizemlju Dvije spavaće sobe,jedno kupatilo,kuhinja,dnevni boravak,terasa Parking

POŠALJITE UPIT