Upit je uspješno poslan

Poreč okolica, stan u prizemlju s prostranim dvorištem novogradnja

  • ID :
    1104862
  • Grad :
    POREČ
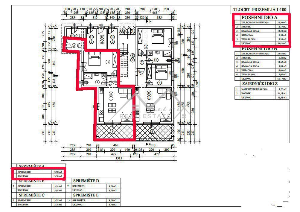
  • Površina :
    54 m2
  • Agencija :
    Matrix Real Estate

190.000 €

OPIS

Poreč okolica, stan u prizemlju s prostranim dvorištem novogradnja U mirnom okruženju nedaleko od centra Poreča, smjestio se ovaj moderni stan u prizemlju stambene zgrade s pet stanova. Stan ima ukupnu površinu od 54 m2 i uključuje dnevni boravak, blagov

POŠALJITE UPIT