Upit je uspješno poslan

Stan u prizemlju od 106m2 na odličnoj lokaciji, Poreč, Istra

  • ID :
    1054428
  • Grad :
    POREČ
  • Površina :
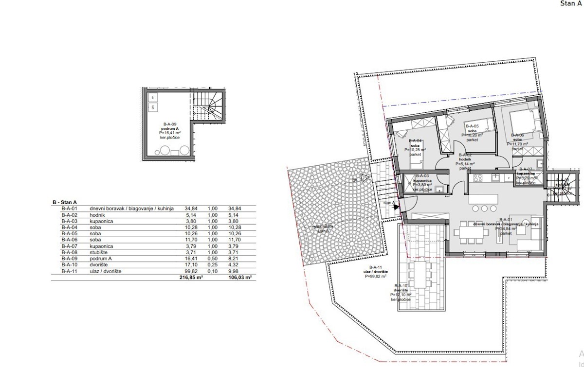
    106 m2
  • Agencija :
    Mediterra Real Estata Agency

435.000 €

OPIS

Novi projekt! Prodaje se stan u prizemlju na atraktivnoj lokaciji u Poreču. Sastoji se od 3 spavaće sobe, 2 kupaonice, dnevnog boravka i kuhinje s izlaskom na terasu. Stan ima podno grijanje te mu pripadaju 2 parkirna mjesta i spremište od 16m2. Za sva

POŠALJITE UPIT