Upit je uspješno poslan

Poreč, okolica, izvrstan dvosoban stan u prizemlju sa vrtom!

  • ID :
    1048113
  • Grad :
    POREČ
  • Površina :
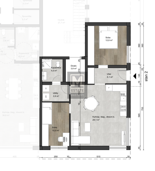
    64 m2
  • Agencija :
    M.A.K.A. ESTATE

456.000 €

OPIS

Poreč, okolica, dvosoban stan u prizemlju sa vrtom! U slikovitom okruženju okolice Poreča, nudimo izvrstan dvosoban stan u prizemlju nove zgrade, s ukupno 13 stanova, pružajući idealan spoj udobnosti i modernog životnog stila. Smještena na traženoj lokac

POŠALJITE UPIT