Upit je uspješno poslan

Istra, Poreč, okolica - luksuzan stan u prizemlju s privatnim bazenom

  • ID :
    1018456
  • Grad :
    POREČ
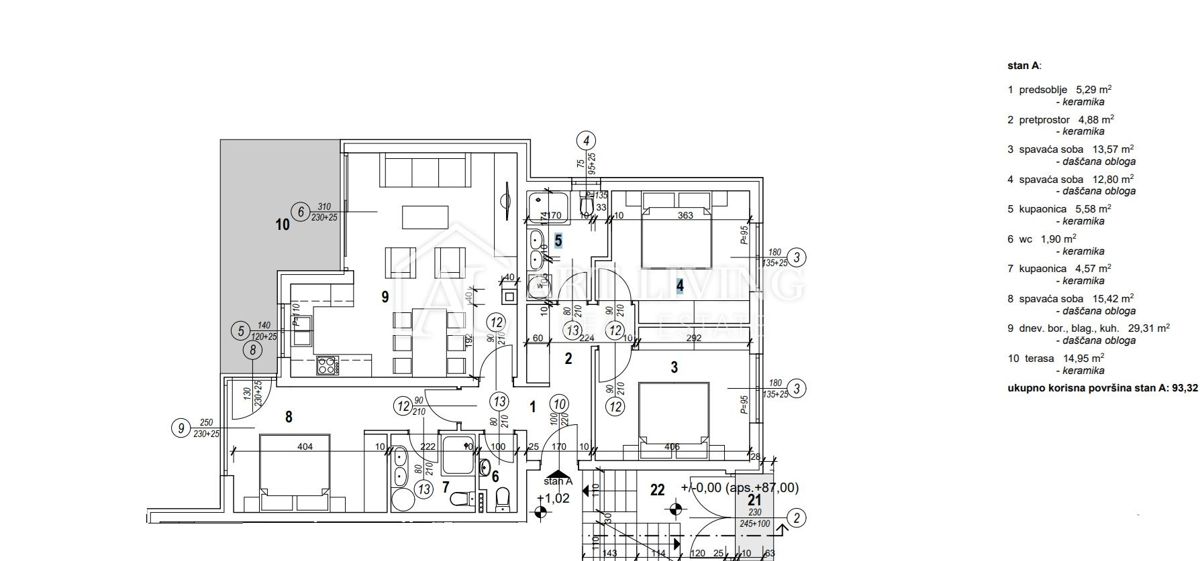
  • Površina :
    93 m2
  • Agencija :
    Artliving realestate

460.000 €

OPIS

Istra, Poreč, okolica Stan A Prodaje se luksuzni trosobni stan s bazenom modernog dizajna u novogradnji, na mirnoj i lijepoj lokaciji, udaljena svega 4 km od grada Poreča i njegovih prelijepih uređenih plaža. Stan se nalazi u prizemlju zgrade sa ukupno

POŠALJITE UPIT