Povpraševanje je bilo uspešno poslano

Apartma v pritličju z dvema spalnicama - Poreč

  • ID :
    996295
  • Mesto :
    POREČ
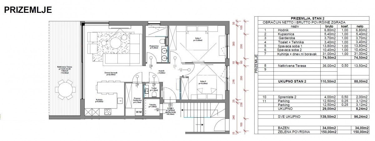
  • Površina :
    91 m2
  • Agencija :
    ISTRA PLUS

350.000 €

OPIS

S71 Na prodaj je stanovanje, ki se nahaja v pritličju stanovanjske stavbe, sestavljene iz petih izjemnih stanovanjskih enot. Nahaja se v mirnem in tišjem okolju, le 2500 metrov stran od morja in hkrati 2500 metrov stran od centra Poreča. V notranjosti teg

POŠLJI POVPRAŠEVANJE