Povpraševanje je bilo uspešno poslano

Istra, Poreč - Center | Luksuzno Stanovanje v Gradnji

  • ID :
    1140615
  • Mesto :
    POREČ
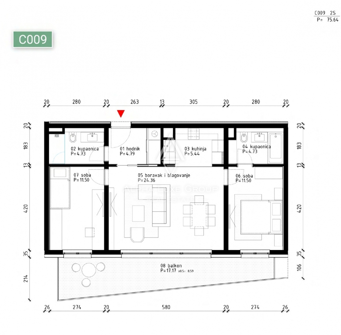
  • Površina :
    86 m2
  • Agencija :
    ALPHA LUXE GROUP REAL ESTATE

366.335 €

OPIS

Odkrijte prestižen stanovanjsko-poslovni projekt, ki obsega dve stavbi z 82 luksuznimi stanovanji, 2 poslovnima prostoroma, 2 podzemnima garažama in dvigali. Projekt je zasnovan tako, da zagotavlja vrhunski življenjski slog v samem srcu Poreča. Nahaja se

POŠLJI POVPRAŠEVANJE