Povpraševanje je bilo uspešno poslano

Istra, čudovit apartma v pritličju z vrtom v bližini Poreča

  • ID :
    1080171
  • Mesto :
    POREČ
  • Površina :
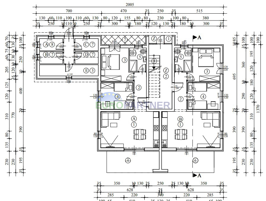
    69 m2
  • Agencija :
    Europartner

230.000 €

OPIS

V neposredni bližini Poreča, le 9 km stran, nudimo v prodajo to čudovito stanovanje v pritličju stavbe. Stanovanje obsega 65,97 m2 z vrtom 200 m2. Stanovanje je sestavljeno iz odprtega koncepta dnevne sobe s kuhinjo in jedilnico, dveh spalnic, kopalnice t

POŠLJI POVPRAŠEVANJE