Povpraševanje je bilo uspešno poslano

Istra, Poreč, luksuzni penthouse s strešno teraso in pogledom na morje - NOVOGRADNJA

  • ID :
    1059594
  • Mesto :
    POREČ
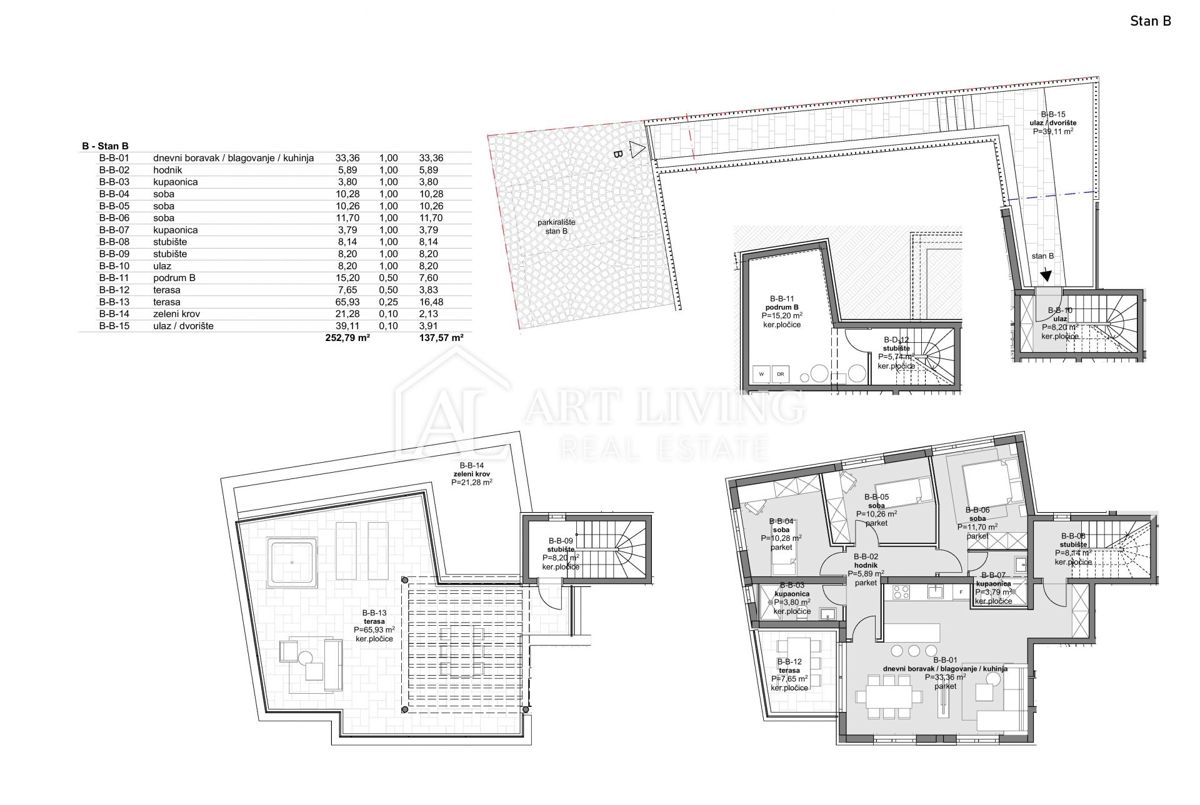
  • Površina :
    137 m2
  • Agencija :
    Artliving realestate

550.200 €

OPIS

Istra, Poreč, luksuzni penthouse s strešno teraso in pogledom na morje Stavba B – stanovanje B Na izjemno atraktivni lokaciji, le 2 km od centra Poreča in 1 km od morja in urejenih plaž, se prodaja ta luksuzni penthouse s strešno teraso v manjši moderni

POŠLJI POVPRAŠEVANJE