porec.com.hr
Povpraševanje je bilo uspešno poslano
OK
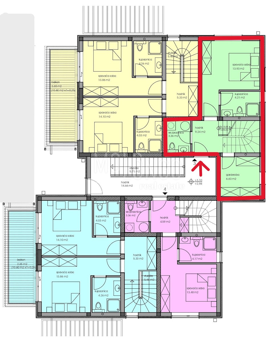
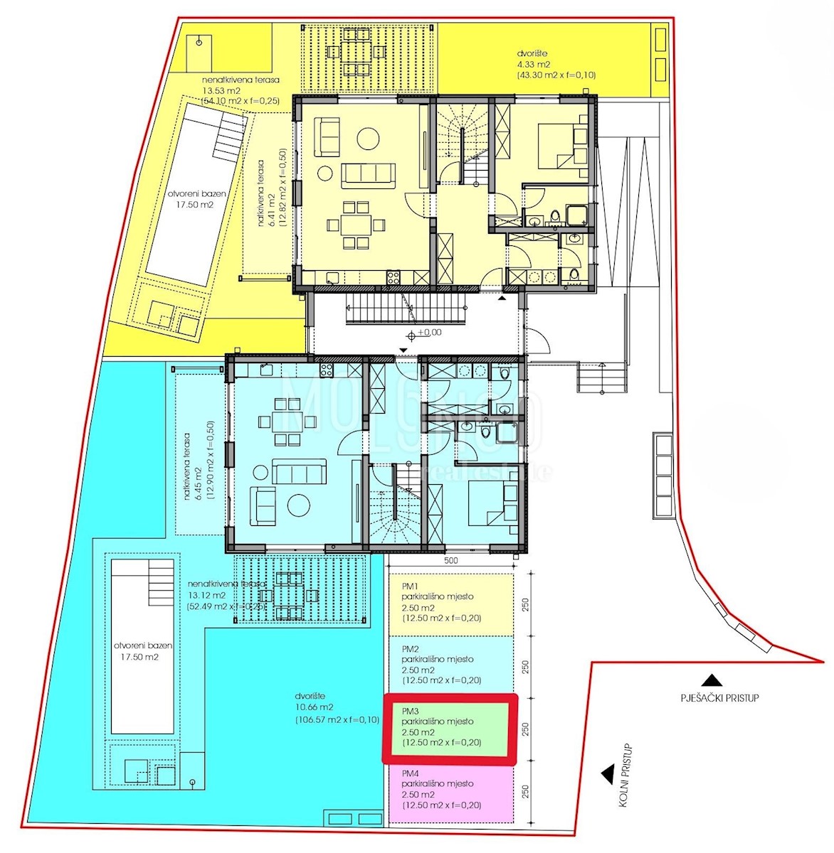
Stanovanje/apartma Poreč, 152,13m2
14
ID :
1056560
Mesto :
POREČ
Površina :
124 m2
Agencija :
Molo Longo
437.000 €
Pošlji povpraševanje
POŠLJI POVPRAŠEVANJE
Z oddajo tega obrazca se strinjam s Splošni pogoji poslovanja in Politiko zasebnosti spletnega mesta porec.com.hr
Vnesite znesek iz slike :
=