Povpraševanje je bilo uspešno poslano

Stanovanje 65m2, novogradnja, okolica Poreča, Istra

  • ID :
    1047340
  • Mesto :
    POREČ
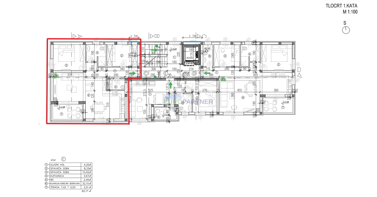
  • Površina :
    65 m2
  • Agencija :
    Europartner

210.272 €

OPIS

Prodamo čudovita stanovanja v novi stavbi v bližini Poreča. Stavba se nahaja v zelo lepem na novo urbaniziranem delu vasi. V objektu bo skupno 11 stanovanj v 4 etažah, v pritličju sta 2 večji stanovanji, v etažah (1., 2. in 3.) pa po 3 stanovanja (od 36m2

POŠLJI POVPRAŠEVANJE