Upit je uspješno poslan

Poreč, okolica, visoko kvalitetna vila s pogledom prema moru

  • ID :
    960050
  • Grad :
    POREČ
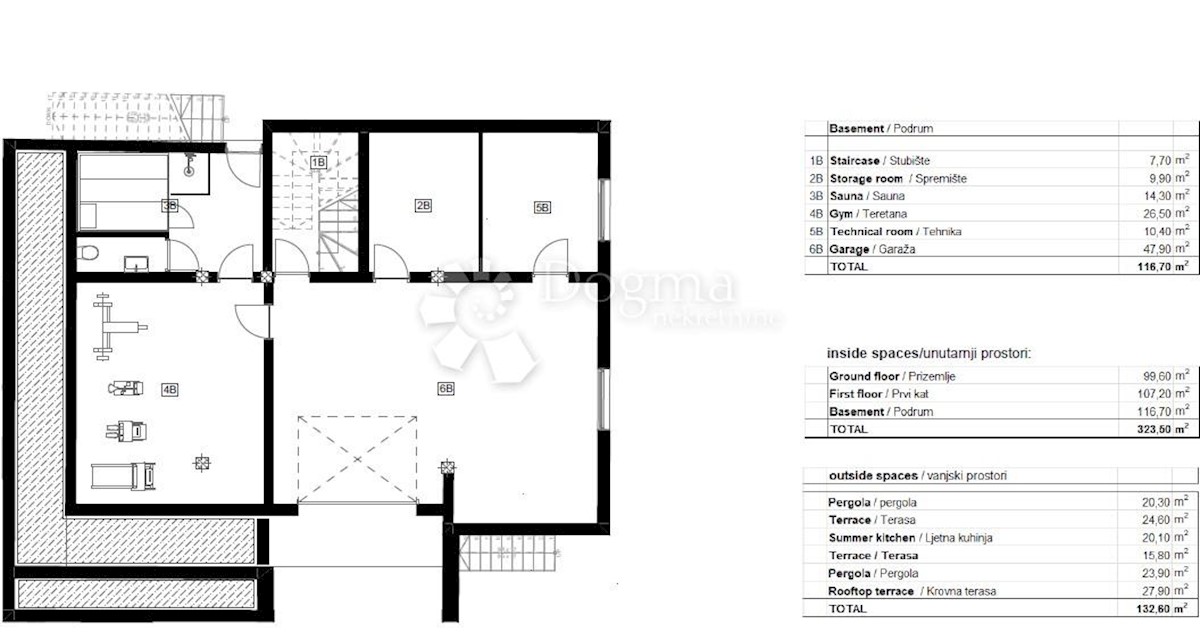
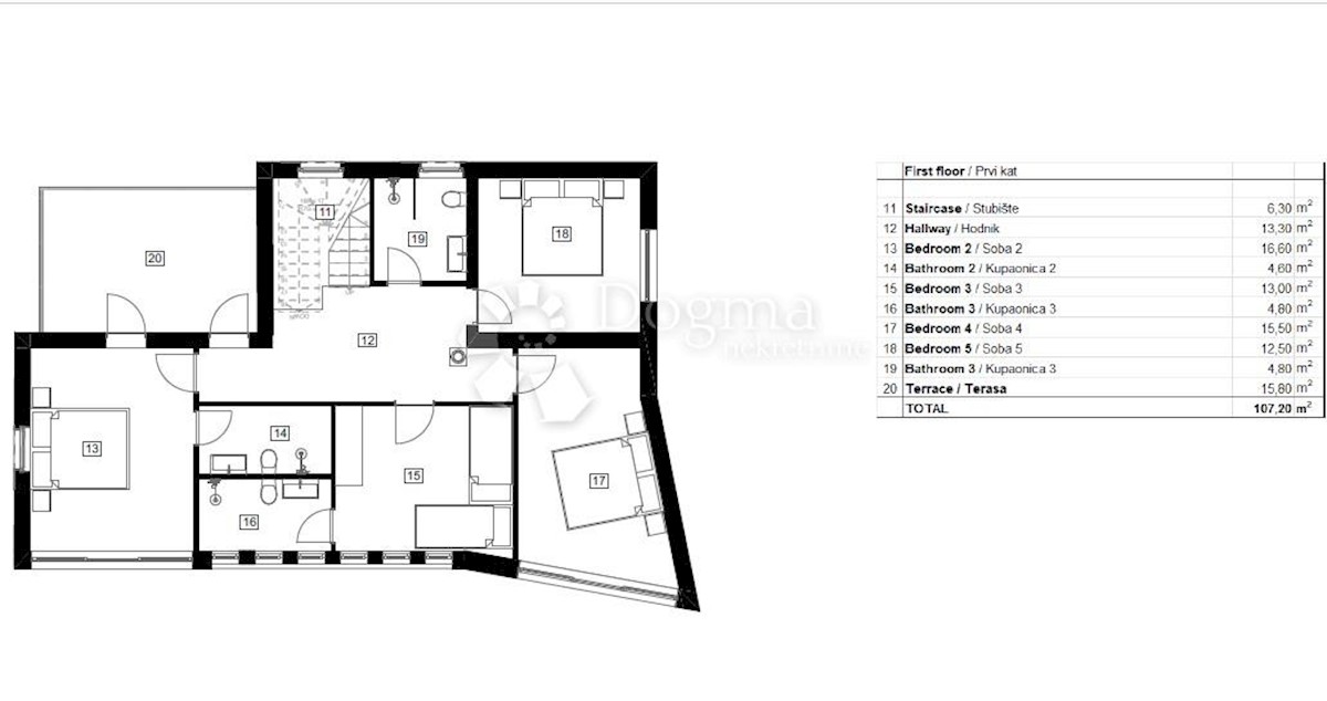
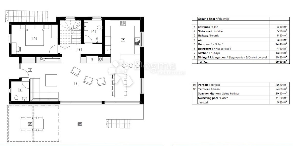
  • Površina :
    323 m2
  • Agencija :
    Dogma nekretnine d.o.o.

1.250.000 €

OPIS

Poreč, okolica, Na prodaju je prekrasna nekretnina smještena nadomak Poreča s otvorenim pogledom prema moru. Ova impresivna nekretnina udaljena je samo 10 minuta vožnje od Poreča i trenutno je u fazi gradnje, s predviđenim završetkom 5/'24, što pruža p

POŠALJITE UPIT