Upit je uspješno poslan

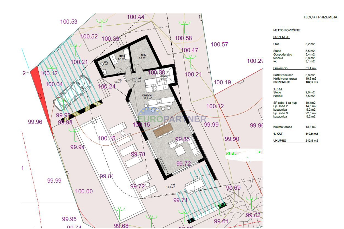
Moderna vila s bazenom na rubu sela, Poreč, Lovreč

  • ID :
    947185
  • Grad :
    POREČ
  • Površina :
    212 m2
  • Agencija :
    Europartner

830.000 €

OPIS

Prodaje se prekrasna vila savršenog spoja moderne arhitekture i istarskog štiha u naselju Lovreč. Vila se nalazi na rubu građevinske zone čime je osiguran mir i privatnosta, a u okolini nalaze se prekrasne novoizgrađene vile i pokoji komad autohtonih star

POŠALJITE UPIT