Upit je uspješno poslan

Poreč, okolica, impozantna vila sa pogledom na more!

  • ID :
    944012
  • Grad :
    POREČ
  • Površina :
    323 m2
  • Agencija :
    DIAMOND Real Estate

1.250.000 €

OPIS

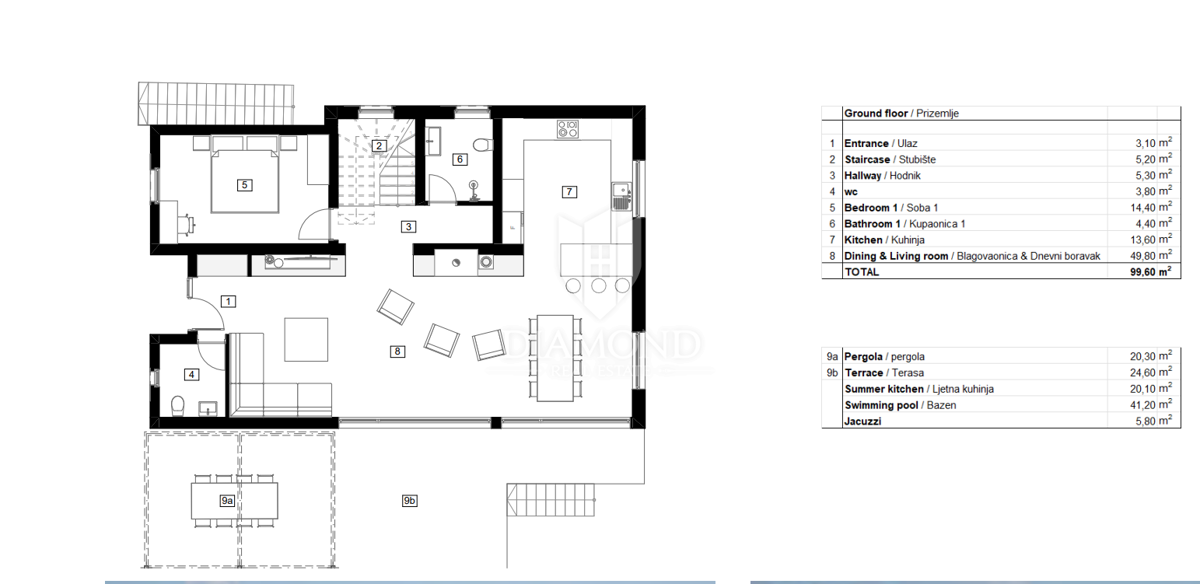
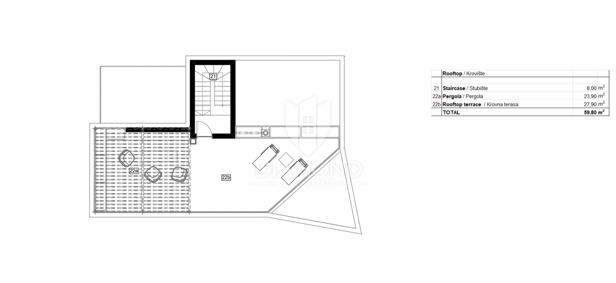
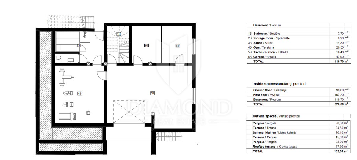
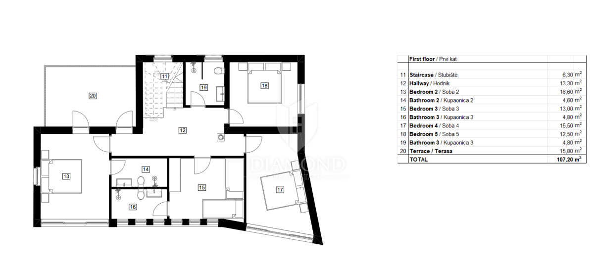
Poreč, okolica, impozantna vila sa pogledom na more! U predgrađu grada Poreča na zemljištu od ukupno 958 m2 smjestit će se ova impozantna vila sa prekrasnim pogledom na more. Njezina ukupna veličina će iznositi 323.50 m2. Vila prostire na tri etaže. U p

POŠALJITE UPIT