Upit je uspješno poslan

Prodaja, vila sa bazenom na samo 1km od mora, blizina Poreča

  • ID :
    932745
  • Grad :
    POREČ
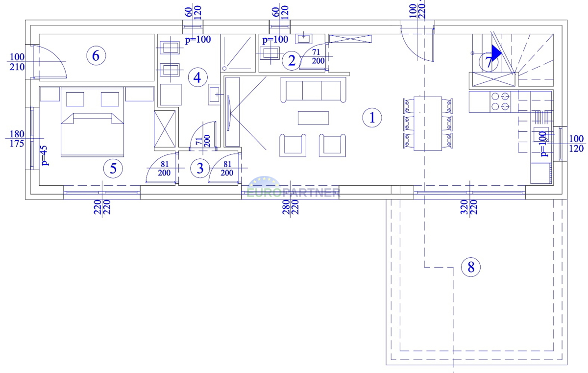
  • Površina :
    120 m2
  • Agencija :
    Europartner

629.000 €

OPIS

Na samo 1km od mora i prekrasnih plaža, smještena je ova vila iz naše ponude. Njena stambena površina iznosi 120 kvadratnih metara raspoređenih na dvije etaže, izgrađena na paceli od 589m2 Vanjski dizajn jasnih ravnih linija u kompoziciji sa kamenom ko

POŠALJITE UPIT