Upit je uspješno poslan

  • ID :
    917262
  • Grad :
    POREČ
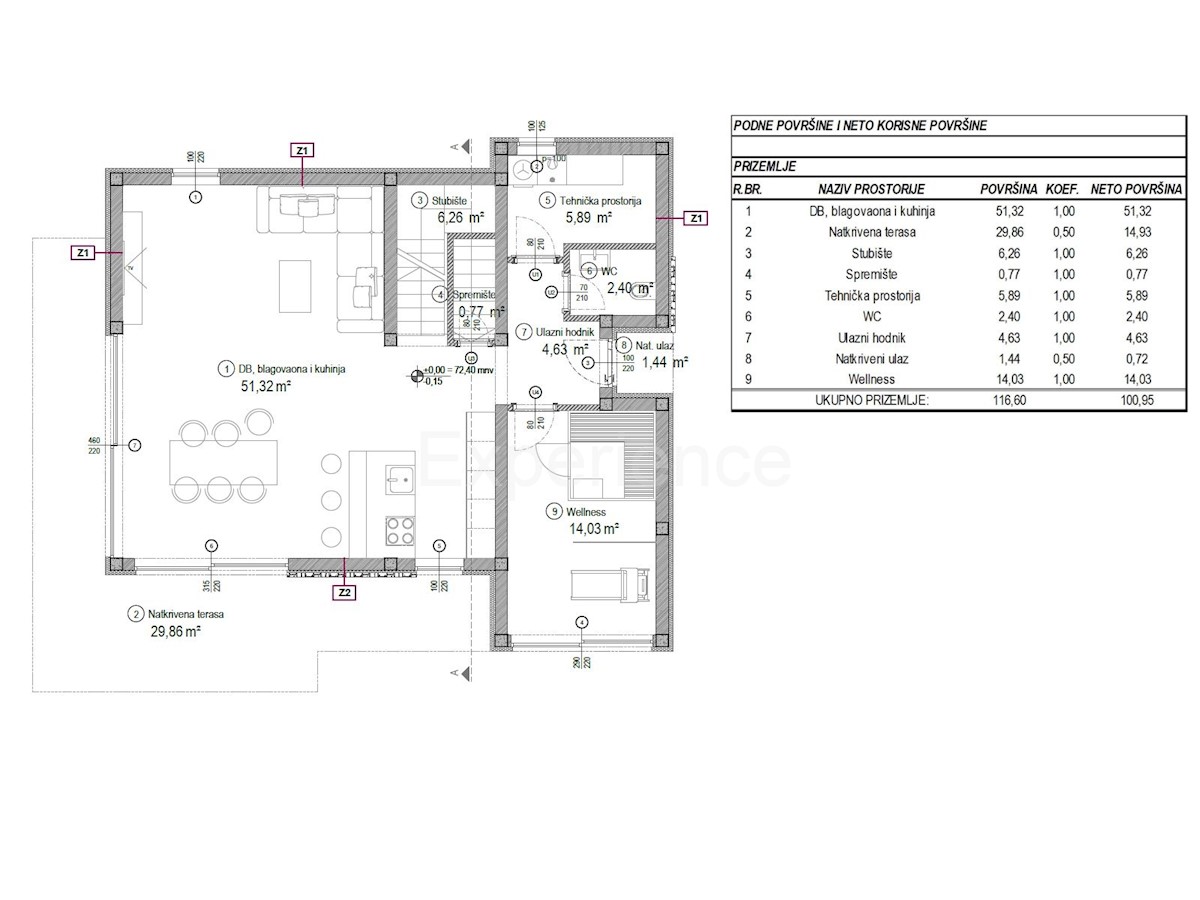
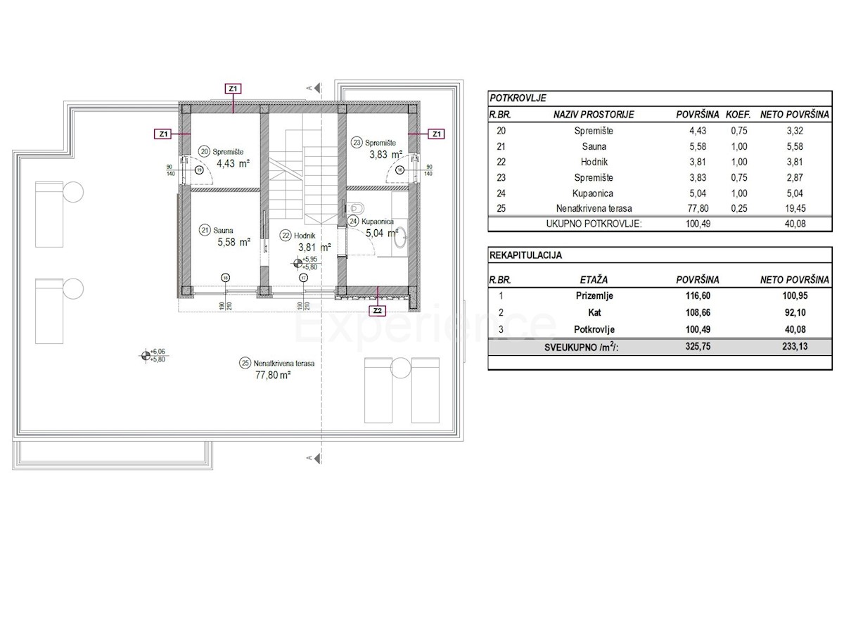
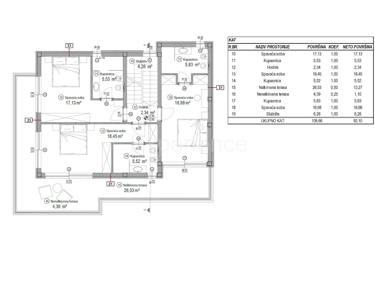
  • Površina :
    233 m2
  • Agencija :
    EXPERIENCE Real Estate

820.000 €

OPIS

U okolici Poreča – cca. 4 km od mora i centra grada, u iznimno mirnom ambijentu na prodaji je luksuzna vila u izgradnji, ukupne površine 233,13 m². Vilu karakterizira atraktivan moderan dizajn sa širokim staklenim otvorima sa pogledom na okolni krajolik.

POŠALJITE UPIT