Upit je uspješno poslan

ISTRA - POREČ - KAMENA REKONSTRUIRANA ISTARSKA VILLA NA 1630m2 PARCELE!

  • ID :
    893116
  • Grad :
    POREČ
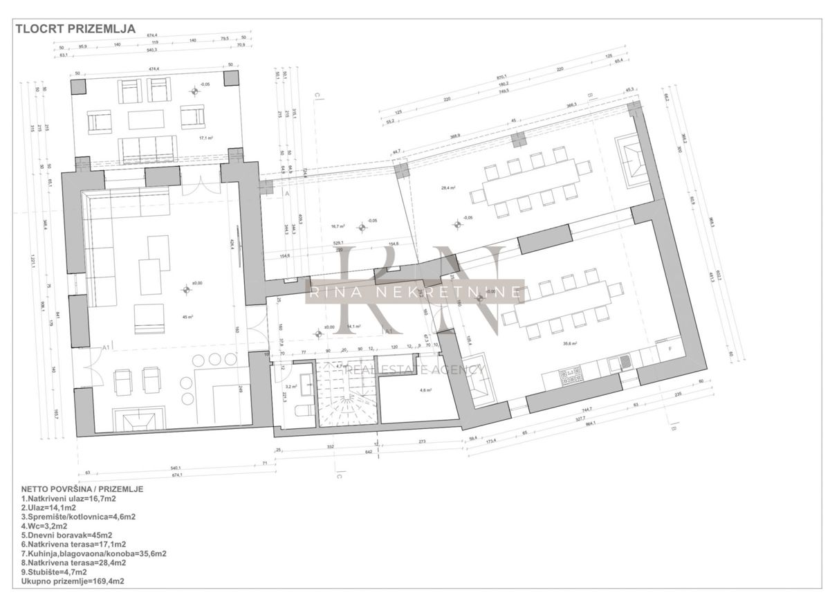
  • Površina :
    350 m2
  • Agencija :
    Rina Nekretnine

985.000 €

OPIS

ISTRA - POREČ Na samo 10km od centra Poreča smjestila se ova jedinstvena istarska kamena villa u kompletnoj privatnosti na čak 1630m2 zemljišta. Sa pogledom na zelenilo i poljoprivredna zemljišta, vlastitim bijelim putem koji će biti uređen od strane inv

POŠALJITE UPIT