Upit je uspješno poslan

POREČ, LUKSUZNA VILA S POGLEDOM NA MORE, blizu mora (V1)

  • ID :
    874316
  • Grad :
    POREČ
  • Površina :
    306 m2
  • Agencija :
    Smart Invest Properties

1.312.500 €

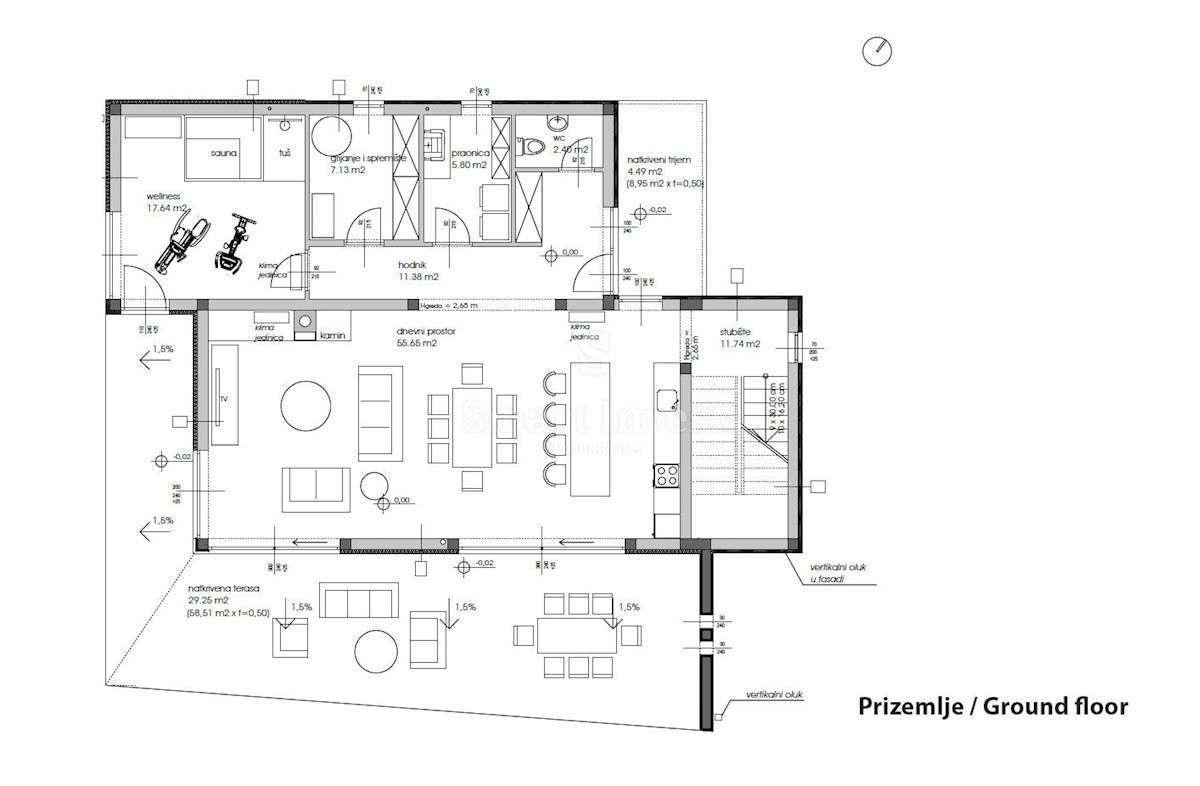
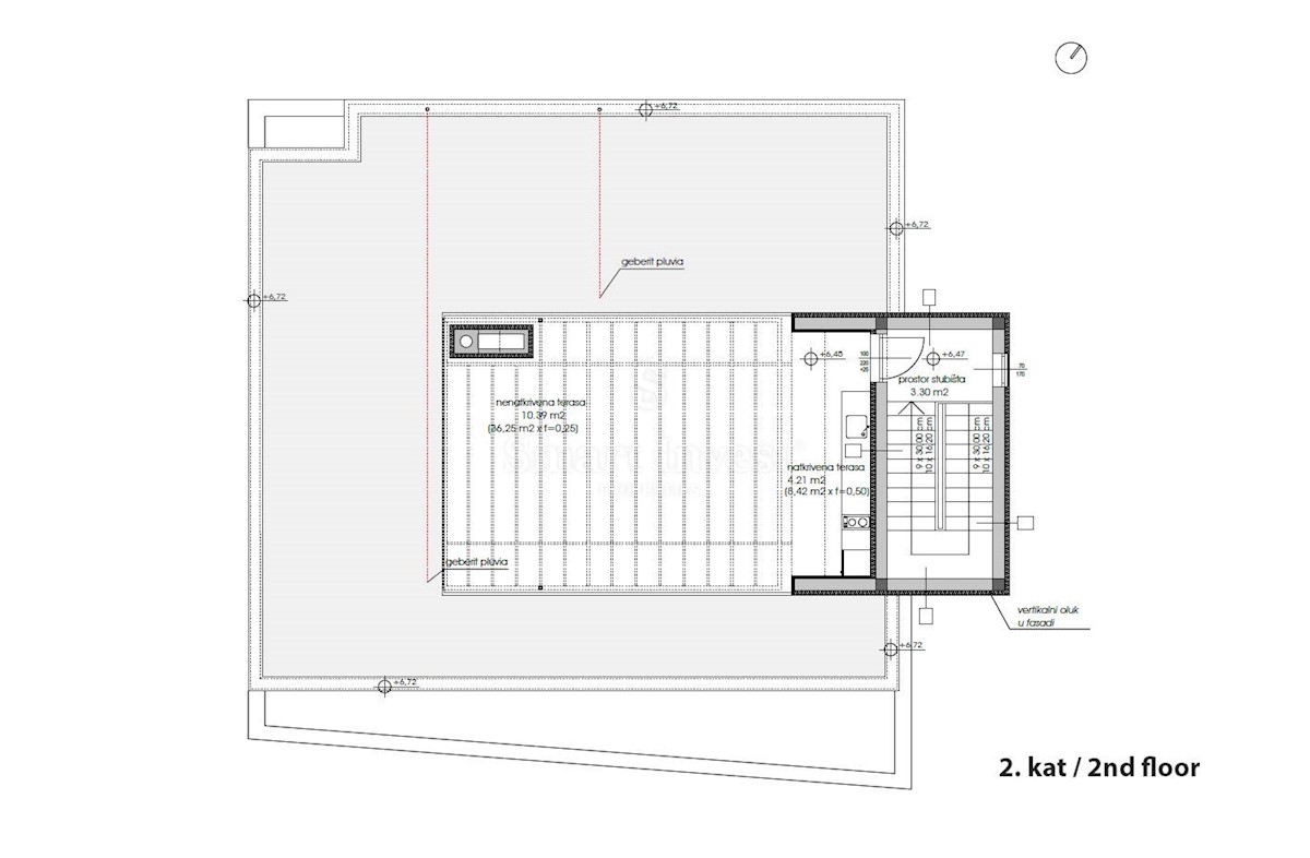
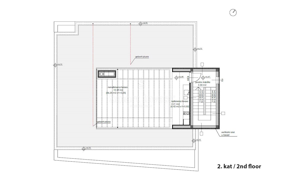
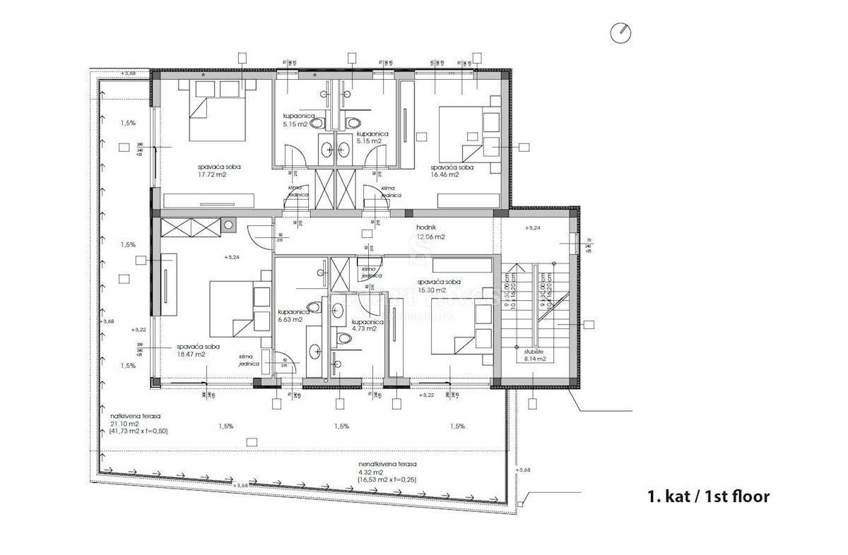
OPIS

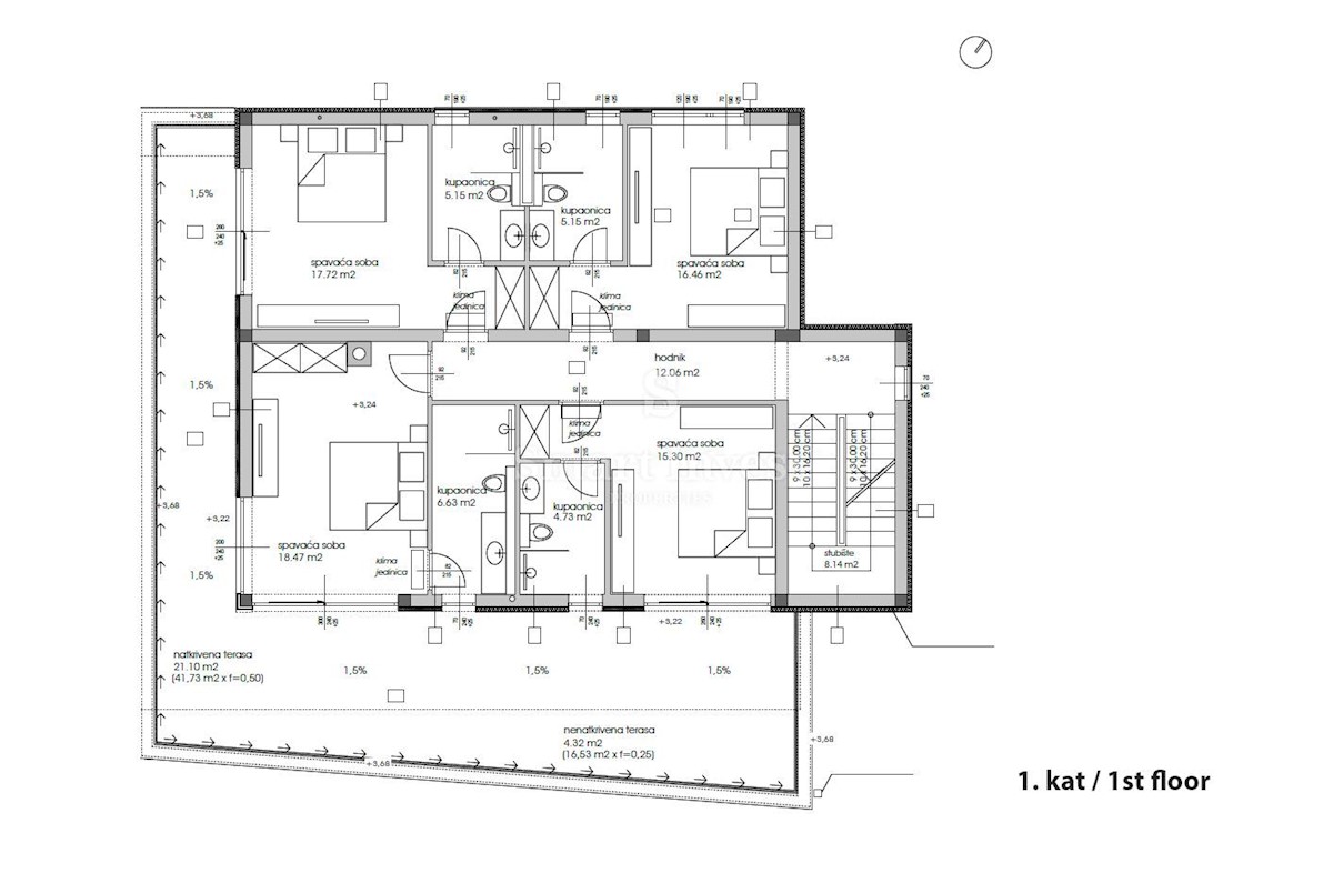
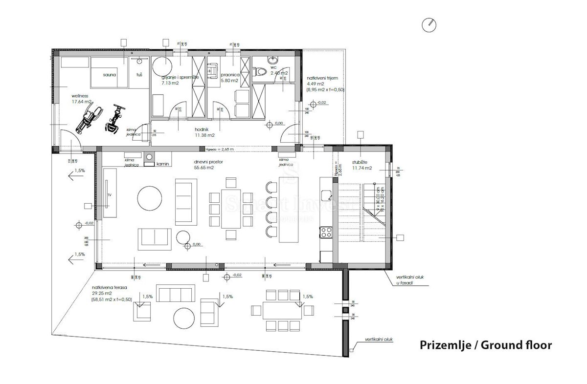
ISTRA - POREČ, Na prodaju je luksuzna vila s bazenom, wellnesom, raskošnom krovnom terasom te prekrasnim pogledom na more na odličnoj lokaciji svega 5 minuta vožnje udaljenoj od mora i plaža. Predviđeni rok završetka radova u 05/2023. RASPORED I OPREMA

POŠALJITE UPIT