Upit je uspješno poslan

Prodaje se moderna vila u fazi Roh Bau, svega 17 km od Poreča i mora

  • ID :
    1142941
  • Grad :
    POREČ
  • Površina :
    107 m2
  • Agencija :
    Tex immobilie

350.000 €

OPIS

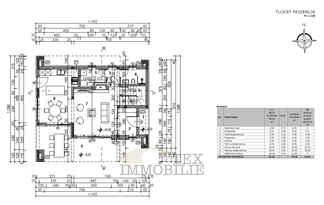
Prodaje se moderna vila u fazi Roh Bau, smještena u mirnom naselju, svega 17 km od Poreča i mora. Vila se prostire na dvije etaže s ukupnom površinom od 107 m², dok je bazen veličine 33 m². Sastoji se od hodnika, kupaonice, tehničke sobe, prostranog dnevn

POŠALJITE UPIT