Upit je uspješno poslan

MODERNA VILLA SA BAZENOM I POGLEDOM NA MORE

  • ID :
    1093869
  • Grad :
    POREČ
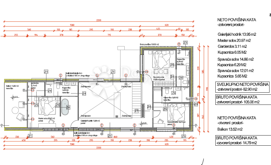
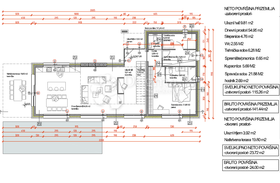
  • Površina :
    198 m2
  • Agencija :
    Dogma nekretnine d.o.o.

1.375.000 €

OPIS

POREČ, ISTRA - moderna, luksuzno vila, impresionirati će Vas pri samom ulazu u kuću. Očaravajuća moderna villa predstavlja vrhunac suvremene arhitekture i nudi luksuzan i udoban životni prostor. Smjestila se u Porečkoj zaleđini, svega 5km od turističkog

POŠALJITE UPIT