Upit je uspješno poslan

Poreč, luksuzne vile s pogledom na more!

  • ID :
    1081661
  • Grad :
    POREČ
  • Površina :
    270 m2
  • Agencija :
    Europartner

1.250.000 €

OPIS

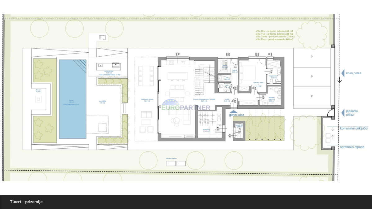
Istra, Poreč Prodaje se kompleks kompletno opremljenih i gotovih vila koji se nalazi na površini od 3730 m2. Sastoji se od 4 samostojeća potpuno namještena i opremljena objekta s kojih se pruža pogled prema otvorenom moru (zračne linije oko 2 kilometra).

POŠALJITE UPIT