Upit je uspješno poslan

POREČ OKOLICA - moderna villa s krovnom terasom, pogled more

  • ID :
    1074528
  • Grad :
    POREČ
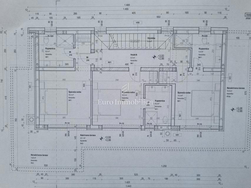
  • Površina :
    251 m2
  • Agencija :
    EURO IMMOBILIEN

970.000 €

OPIS

Prodaje se prekrasna villa modernog dizajna koja se gradi se u jednom malom istarskom gradiću nedaleko od Poreča i mora (14 km). Predviđeni završetak radova je u 2025. godini. Sastoji se od prizemlja i kata. U prizemlju se nalazi predsoblje, ulazni hodni

POŠALJITE UPIT