Upit je uspješno poslan

LUKSUZNA NEKRETNINA NA RUBU SELA 3KM OD MORA

  • ID :
    1073596
  • Grad :
    POREČ
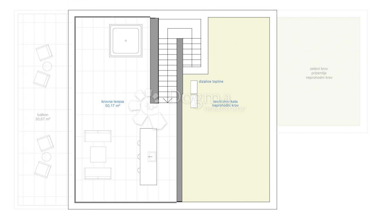
  • Površina :
    204 m2
  • Agencija :
    Dogma nekretnine d.o.o.

1.250.000 €

OPIS

DOBRODOŠLI U SVIJET EKSKLUZIVNIH NEKRETNINA U NAŠOJ BOGATOJ PONUDI DOVRŠENA VILLA - POTPUNO NAMJEŠTENA I OPREMLJENA Spektakularna vila s bazenom i pogledom na more nalazi se na rubnoj parceli površine 867 m2, pružajući neometan pogled na prekrasno more

POŠALJITE UPIT