Upit je uspješno poslan

Prekrasna prizemnica nedaleko od Poreča

  • ID :
    1052989
  • Grad :
    POREČ
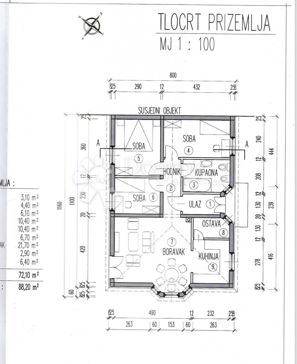
  • Površina :
    88 m2
  • Agencija :
    Dogma nekretnine d.o.o.

350.000 €

OPIS

Poreč je još od 1970-ih jedan od glavnih centara hrvatskog turizma. Porečkih tridesetak hotela ima više od 95.000 kreveta, a tu je i 13 autokampova, nudistički kampovi, 16 apartmanskih kompleksa, vile, bungalovi i obiteljske kuće. To je nevjerojatan broj

POŠALJITE UPIT