Upit je uspješno poslan

ISTRA - POREČ, KUĆA U BLIZININ MORA, NOVOGRADNJA

  • ID :
    1029211
  • Grad :
    POREČ
  • Površina :
    125 m2
  • Agencija :
    Rina Nekretnine

505.000 €

OPIS

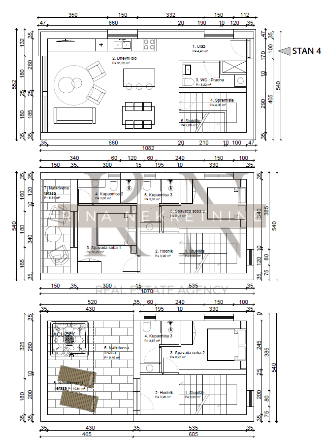
ISTRA – POREČ Nudimo vam NOVOGRADNJU SA POGLEDOM NA MORE! U izrazito urbanom i traženom dijelu Poreča na svega 900m od plaže nalazi se iznimno kvalitetan projekat poznatog investitora u Istri! U prodaji je višestambeni objekt u Poreču. Isti se sastoji o

POŠALJITE UPIT