Upit je uspješno poslan

Atraktivna kuća u nizu u Poreču ( C )

  • ID :
    1020026
  • Grad :
    POREČ
  • Površina :
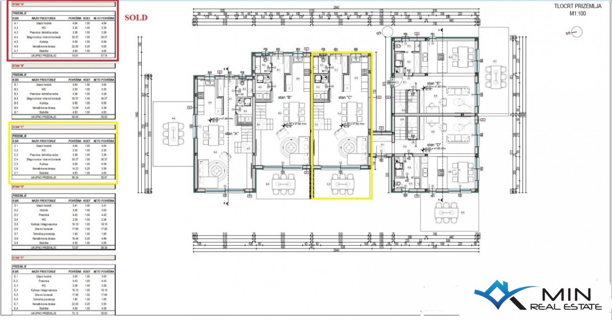
    125 m2
  • Agencija :
    MIN

395.000 €

OPIS

Prodaje se kuća u izgradnji na mirnoj lokaciji u Poreču. Kuća je udaljena 1700 m od mora i lijepo uređene plaže te 2200 m od centra Poreča. Kuća se prostire na 3 etaže te se sastoji od prizemlja, 1. kata i potkrovlja. Kuća ima 125 m2 i sastoji se od ulazn

POŠALJITE UPIT