Upit je uspješno poslan

Luksuzne Nekretnine Istra, prodajem Vilu, Poreč, okolica

  • ID :
    1001481
  • Grad :
    POREČ
  • Površina :
    204 m2
  • Agencija :
    REN nekretnine

1.250.000 €

OPIS

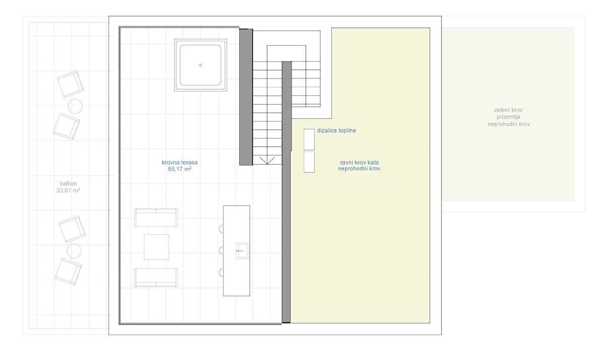
Kompleks vila se nalazi na površini od 3730 m2. Sastoji se od 4 samostojeća potpuno namještena i opremljena objekta iz kojih se pruža pogled prema otvorenom moru. Bruto kvadratura svake kuće: 270 m2 (računaju se samo zatvorene površine) Neto unutarnji

POŠALJITE UPIT