porec.com.hr
Inquiry was successfully sent
OK
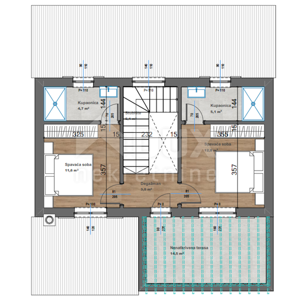
House Poreč, 135m2
8
ID :
946788
City :
POREČ
Size :
135 m2
Agency :
DUX Nekretnine
450.000 €
Send inquiry
SEND INQUIRY
By submitting this form, I agree to the General business terms and Privacy policy of the porec.com.hr website
Enter the sum from the picture :
=