Inquiry was successfully sent

Modern four-bedroom house near the sea

  • ID :
    915164
  • City :
    POREČ
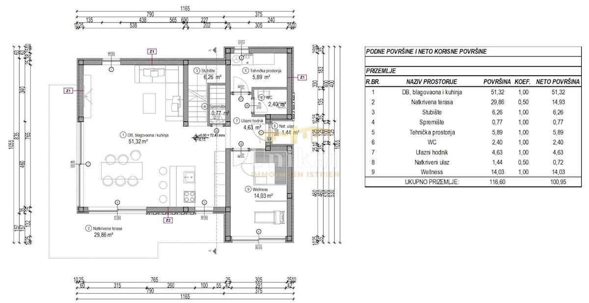
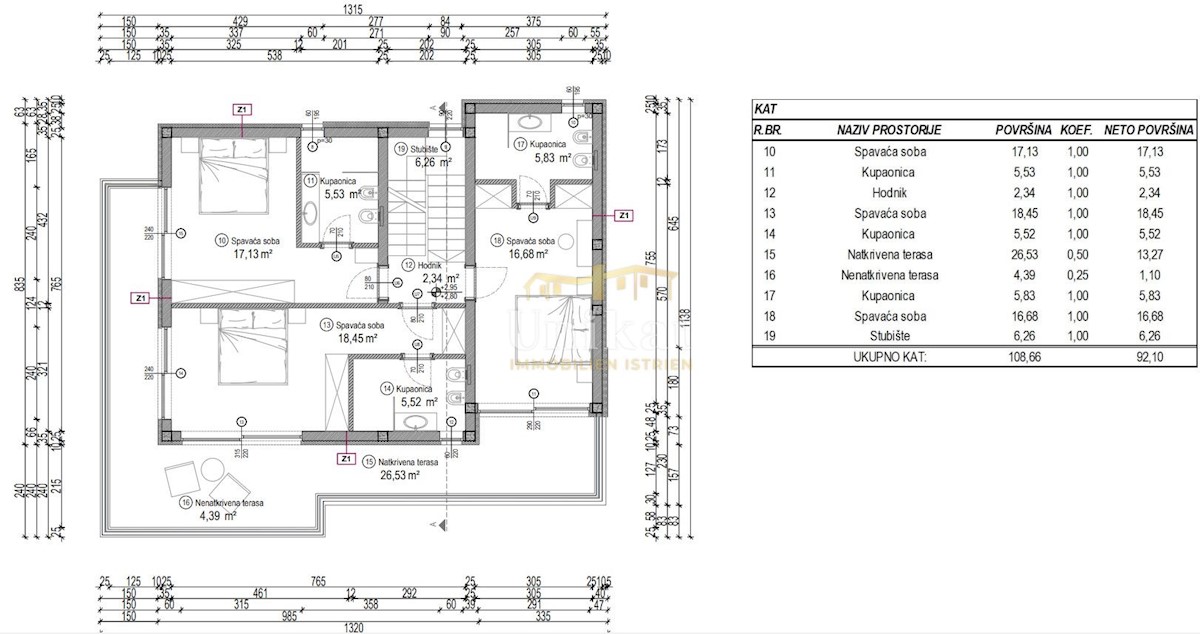
  • Size :
    233 m2
  • Agency :
    Unikat Immobilien Istrien d.o.o.

825.000 €

DESCRIPTION

Location of the house: This house is located in a small village near Poreč, 4 km from the sea and Poreč. There are holiday homes and family houses in the neighborhood, and the place is otherwise surrounded by nature, but well connected by traffic. Layout

SEND INQUIRY