Inquiry was successfully sent

Poreč - modern house 1300 m from the sea C4

  • ID :
    905915
  • City :
    POREČ
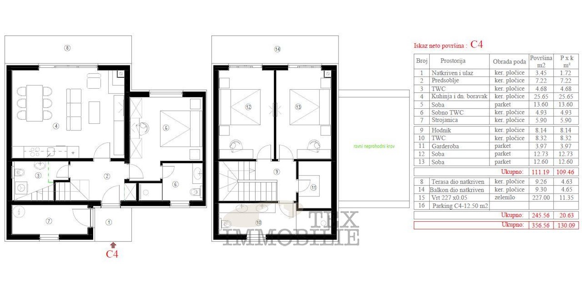
  • Size :
    130 m2
  • Agency :
    Tex immobilie

505.000 €

DESCRIPTION

A beautiful house under construction is for sale in Poreč. The house will be located in an attractive location that is ideal for living as well as for renting. The house will have a spacious living room, dining room, and kitchen with an open space concept

SEND INQUIRY