Inquiry was successfully sent

Poreč, Semi-detached house with pool and sea view

  • ID :
    1058026
  • City :
    POREČ
  • Size :
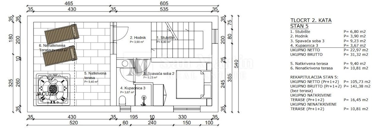
    116 m2
  • Agency :
    San Martin Real Estate

598.000 €

DESCRIPTION

Poreč, Luxury house with a swimming pool and a large terrace with a view of the sea On the ground floor of the house there is a spacious living area with an open-plan kitchen and dining room connected by large glass walls to the yard where there is a 25

SEND INQUIRY