Povpraševanje je bilo uspešno poslano

POREČ-PRITLEČNA HIŠA V GRADNJI Z BAZENOM

  • ID :
    999469
  • Mesto :
    POREČ
  • Površina :
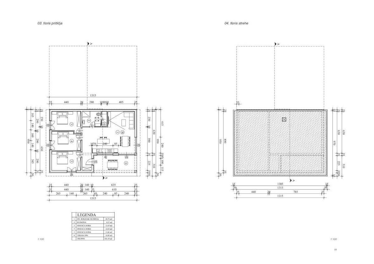
    101 m2
  • Agencija :
    RAPIDUS

OPIS

Kombinacija narave in moderne arhitekture je rezultat te čudovite novogradnje - enonadstropne hiše.Nahaja se na mirnem mestu, v bližini Poreča in morja, 5 km stran. Hiša je dvojček in se nahaja na zemljišču velikosti 447m2.V svojih 101,45 m2 ima hodnik, o

POŠLJI POVPRAŠEVANJE