Povpraševanje je bilo uspešno poslano

Okolica Poreča, samostojna hiša z bazenom

  • ID :
    948939
  • Mesto :
    POREČ
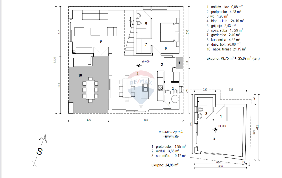
  • Površina :
    208 m2
  • Agencija :
    Remax Centar nekretnina

770.000 €

OPIS

V okolici Poreča je naprodaj hiša v gradnji, stanovanjske površine 210 m2 in 640 m2 vrta. Pritličje obsega predsobo, shrambo, garderobo, wc, eno spalnico s kopalnico, kuhinjo z jedilnico, veliko dnevno sobo z izhodom na teraso in bazen s prostorom za sonč

POŠLJI POVPRAŠEVANJE