Povpraševanje je bilo uspešno poslano

Hiša Poreč

  • ID :
    1131943
  • Mesto :
    POREČ
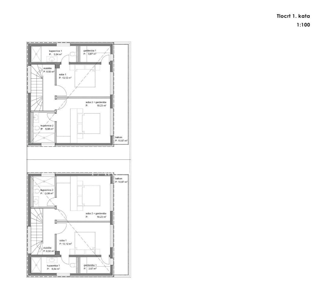
  • Površina :
    122 m2
  • Agencija :
    PARENTIUM PREMIUM REAL ESTATE

550.000 €

OPIS

Istra, Poreč - okolica Na mirni avtohtoni istrski legi se nahaja moderna hiša dvojček z bazenom unikatne zasnove s skupno površino 122,36m2. Izredno funkcionalna in lepo zasnovana hiša se razprostira v 2 etažah. V pritličju je prostorna in osvetljena od

POŠLJI POVPRAŠEVANJE