porec.com.hr
Povpraševanje je bilo uspešno poslano
OK
13
ID :
1122708
Mesto :
POREČ
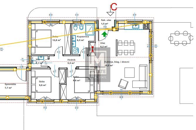
Površina :
110 m2
Agencija :
M.A.K.A. ESTATE
Pošlji povpraševanje
POŠLJI POVPRAŠEVANJE
Z oddajo tega obrazca se strinjam s Splošni pogoji poslovanja in Politiko zasebnosti spletnega mesta porec.com.hr
Vnesite znesek iz slike :
=