porec.com.hr
Povpraševanje je bilo uspešno poslano
OK
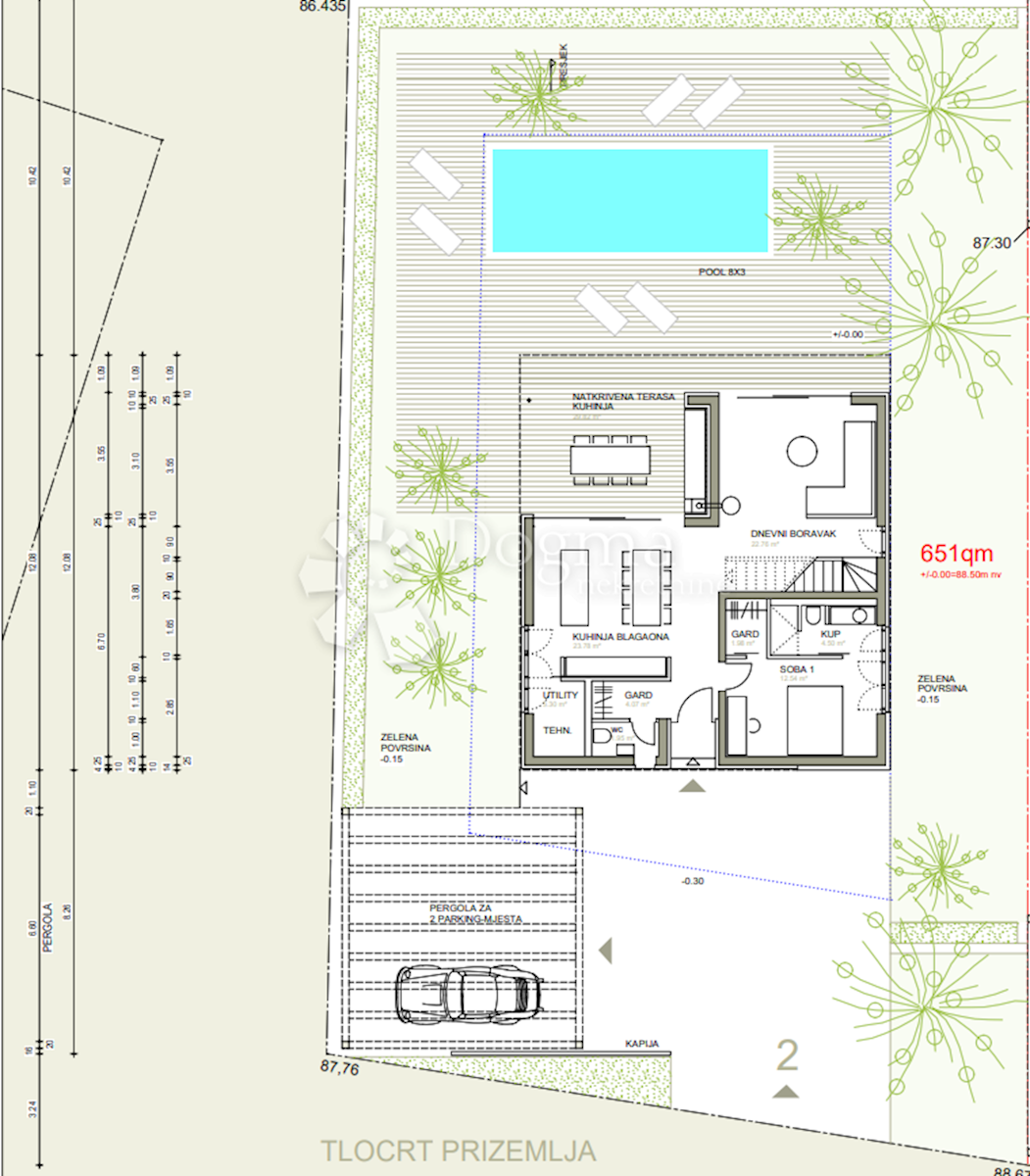
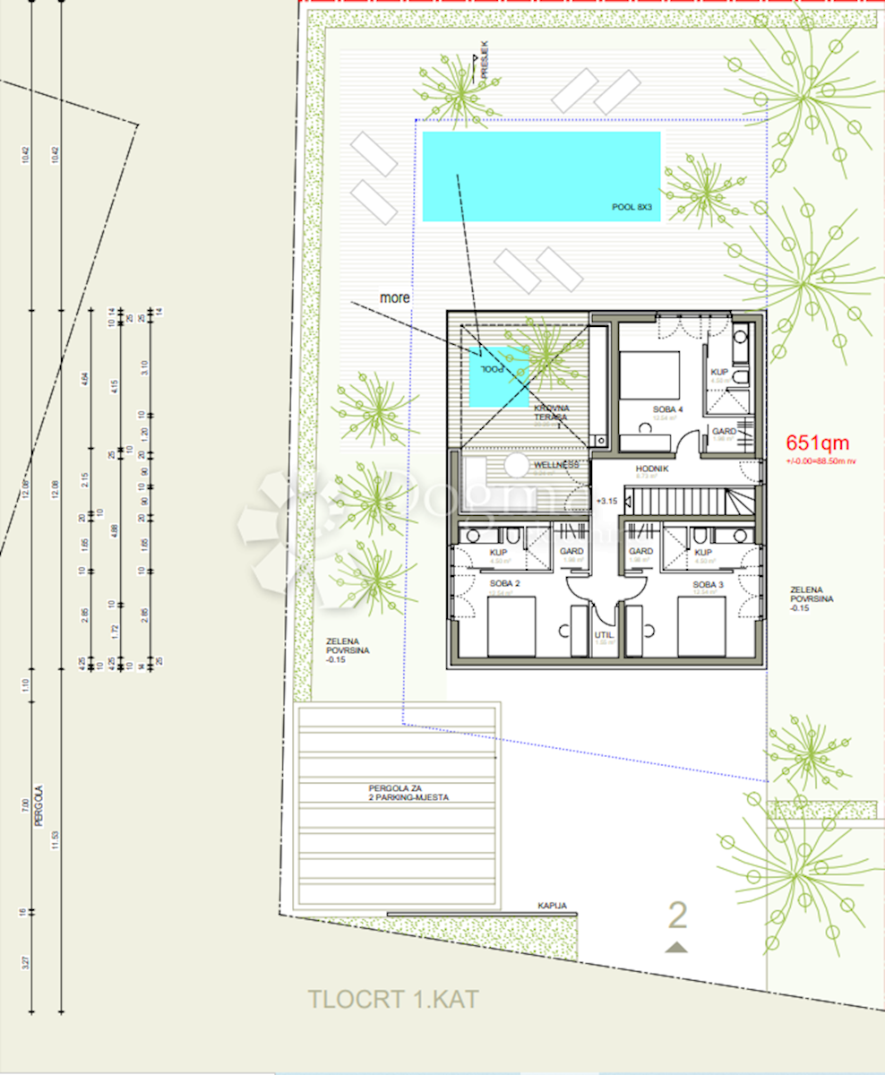
Hiša Nova Vas, Poreč, 204,68m2
9
ID :
1003167
Mesto :
POREČ
Površina :
204 m2
Agencija :
Dogma nekretnine d.o.o.
Pošlji povpraševanje
POŠLJI POVPRAŠEVANJE
Z oddajo tega obrazca se strinjam s Splošni pogoji poslovanja in Politiko zasebnosti spletnega mesta porec.com.hr
Vnesite znesek iz slike :
=