Anfrage wurde erfolgreich gesendet

Modernes und hochwertiges Haus in toller Lage mit Aussicht in Strandnähe

  • ID :
    981671
  • Stadt :
    POREČ
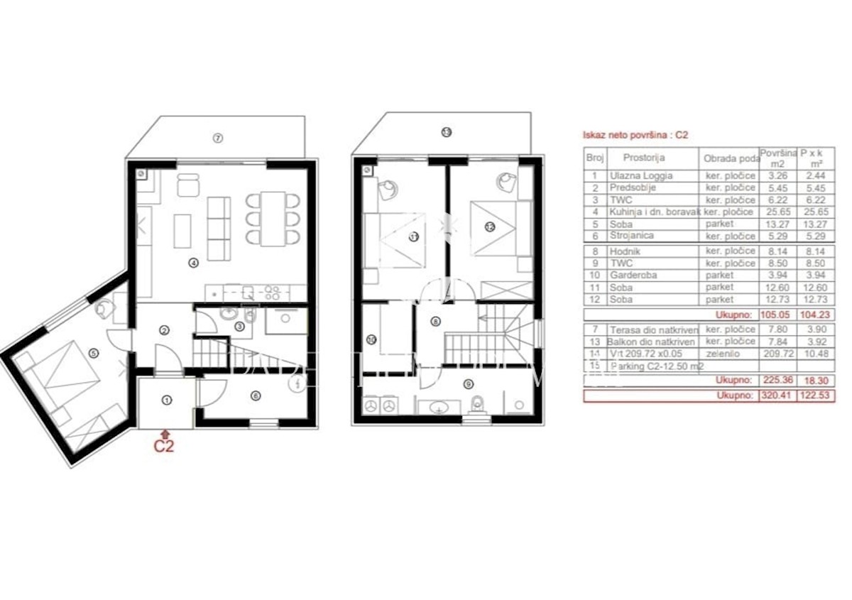
  • Fläche :
    122 m2
  • Agentur :
    PARENTIUM PREMIUM REAL ESTATE

453.361 €

BESCHREIBUNG

Istrien, Poreč - in Strandnähe Dieses moderne Haus mit einer Fläche von 122,53 m² befindet sich in attraktiver Lage, nur wenige Minuten von den ersten Stränden entfernt und nahe dem Zentrum von Poreč. Im ersten Stock wird es ein geräumiges Wohnzimmer mi

ANFRAGE SENDEN