Anfrage wurde erfolgreich gesendet

Neu gebaute Villa in wunderschöner Lage

  • ID :
    928323
  • Stadt :
    POREČ
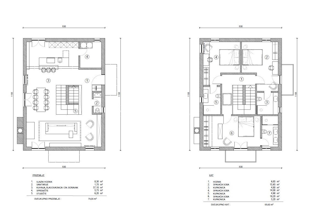
  • Fläche :
    148 m2
  • Agentur :
    ISTRA PLUS

600.000 €

BESCHREIBUNG

K68 In einem kleinen Dorf 14 km von Poreč entfernt entstehen 6 wunderschöne Villen mit Swimmingpools, deren Fertigstellung für November 2023 geplant ist. Straße Hausnr. 3 mit einer Fläche von 148,65 m2 auf einem Grundstück von 612 m2 Im Erdgeschoss befind

ANFRAGE SENDEN