Anfrage wurde erfolgreich gesendet

Villa mit Swimmingpool in der Nähe von Poreč

  • ID :
    928322
  • Stadt :
    POREČ
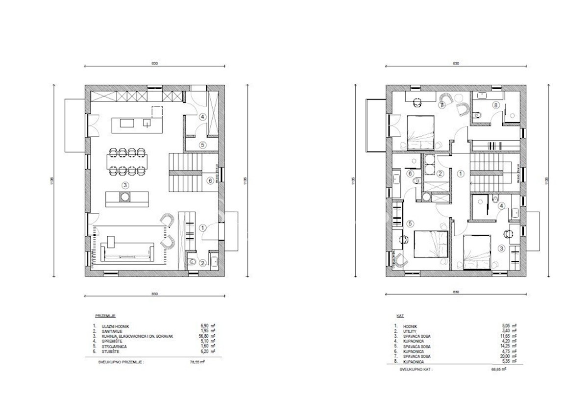
  • Fläche :
    147 m2
  • Agentur :
    ISTRA PLUS

600.000 €

BESCHREIBUNG

K67 In einem kleinen Dorf 14 km von Poreč entfernt entstehen 6 wunderschöne Villen mit Swimmingpool, deren Fertigstellung für November 2023 geplant ist. Straße Hausnr. 2 mit einer Fläche von 147m2 auf einem Grundstück von 640m2 Im Erdgeschoss befindet sic

ANFRAGE SENDEN