Anfrage wurde erfolgreich gesendet

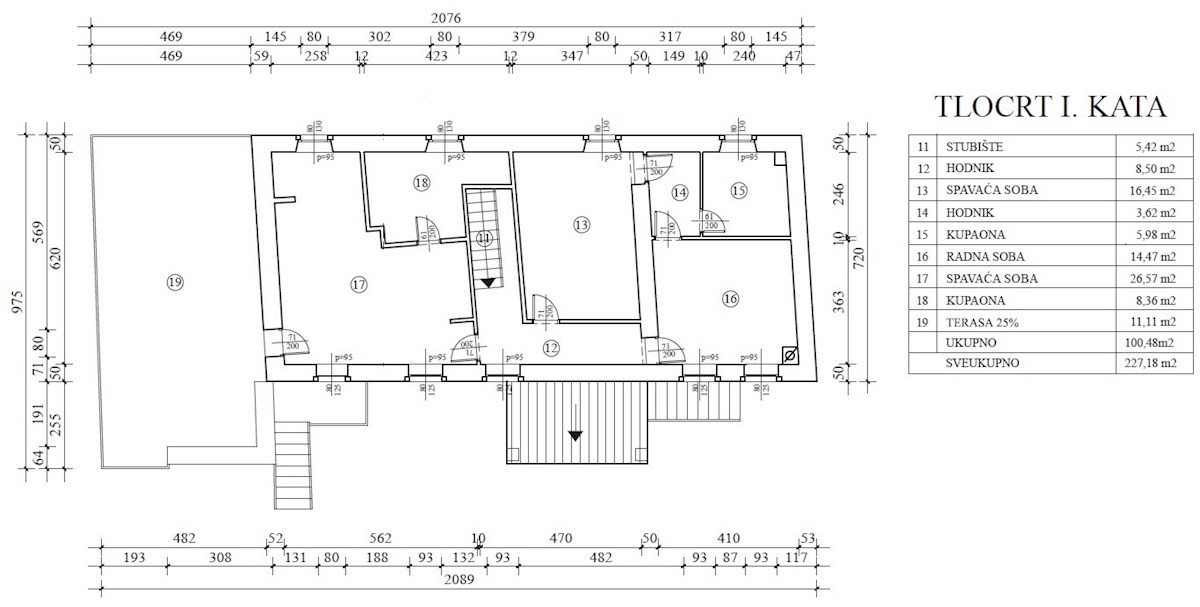
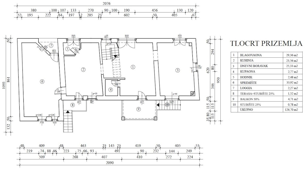
Renoviertes Steinhaus von 227 m2 mit Swimmingpool in der Nähe von Poreč

  • ID :
    1161773
  • Stadt :
    POREČ
  • Fläche :
    227 m2
  • Agentur :
    SELETON nekretnine - Immobilien - Real Estate

580.000 €

BESCHREIBUNG

Zum Verkauf steht ein freistehendes renoviertes Steinhaus mit 227 m² Wohnfläche, bestehend aus Wohnzimmer, Küche, Esszimmer, Gäste-WC und großem Abstellraum im Erdgeschoss, sowie Flur, 3 Schlafzimmern (eines davon mit eigenem Bad) und großer Terrasse im e

ANFRAGE SENDEN