Anfrage wurde erfolgreich gesendet

Luxusvilla - 2,5 km zum Meer

  • ID :
    1141885
  • Stadt :
    POREČ
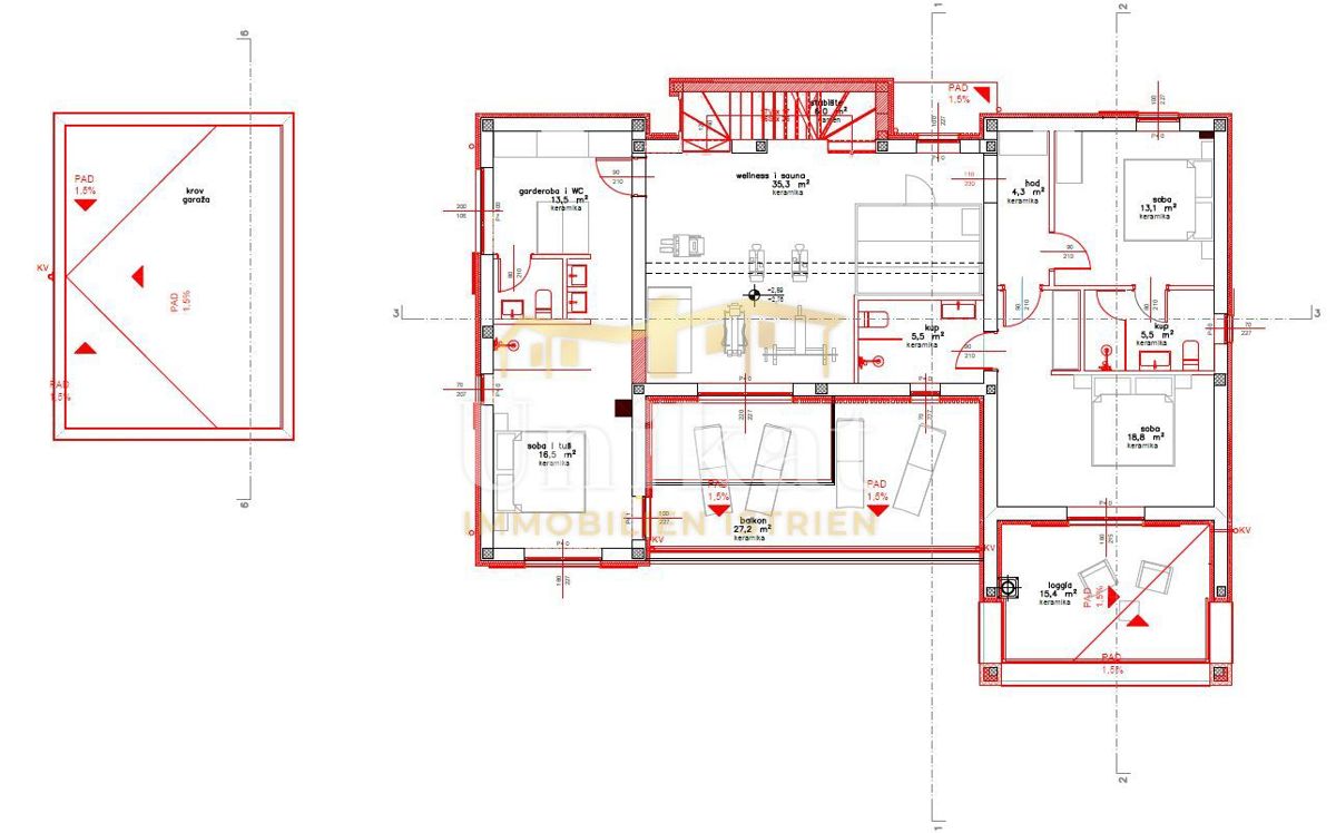
  • Fläche :
    300 m2
  • Agentur :
    Unikat Immobilien Istrien d.o.o.

1.168.000 €

BESCHREIBUNG

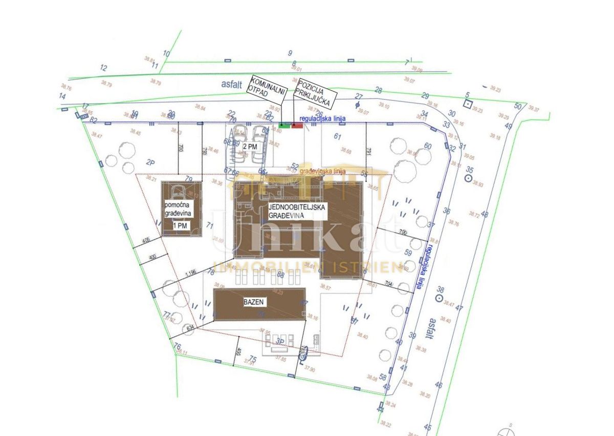
Lage des Hauses: Dieses Haus befindet sich in einem sehr ruhigen kleinen Ort am Stadtrand von Poreč, nur 2,5 km vom Meer und 5 km vom Zentrum von Poreč entfernt. Der Ort ist von Natur umgeben und in der Nachbarschaft befinden sich Einfamilienhäuser und Fe

ANFRAGE SENDEN