Anfrage wurde erfolgreich gesendet

  • ID :
    1119331
  • Stadt :
    POREČ
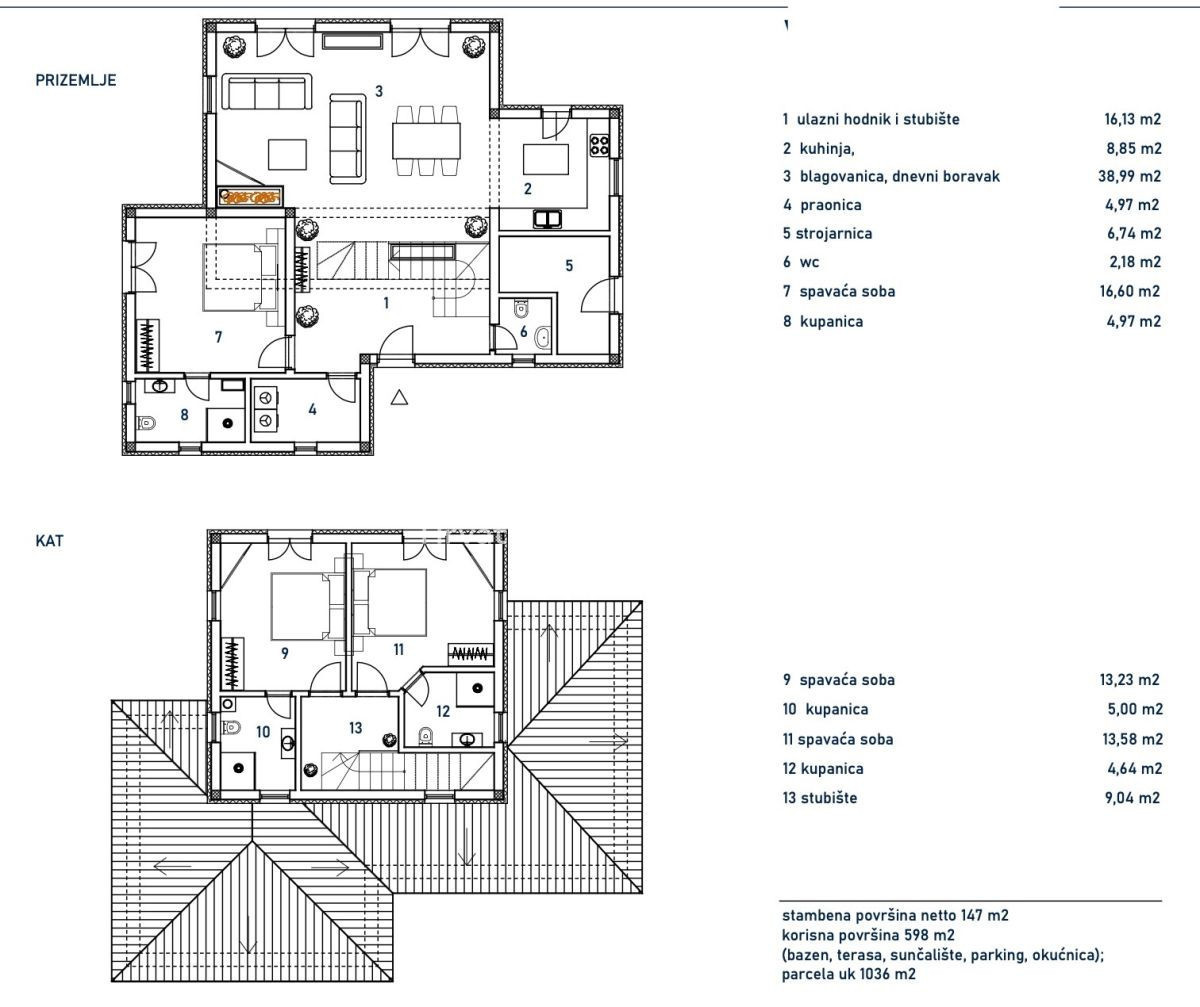
  • Fläche :
    147 m2
  • Agentur :
    Century 21 Futura

1.050.000 €

BESCHREIBUNG

POREČ, UMGEBUNG, FREISTEHENDE VILLA MIT SCHWIMMBAD Wir verkaufen eine moderne freistehende Villa mit Swimmingpool, nur 4 km vom Meer und wunderschönen Stränden, 6 km von der Stadt Poreč entfernt. Die Villa mit einer Gesamtnettofläche von 147 m2 erstreck

ANFRAGE SENDEN