Anfrage wurde erfolgreich gesendet

  • ID :
    1048367
  • Stadt :
    POREČ
  • Fläche :
    230 m2
  • Agentur :
    EXPERIENCE Real Estate

760.000 €

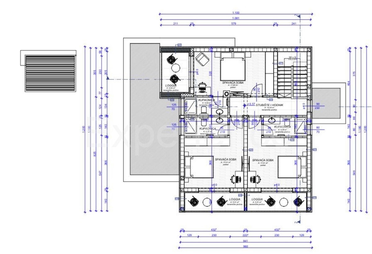
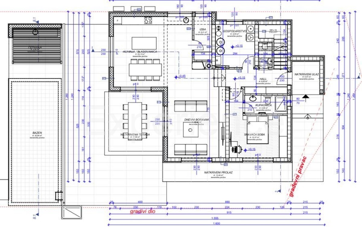
BESCHREIBUNG

In der Nähe von Poreč, in idyllischer Lage ca. 11 km von der Küste und dem Stadtzentrum entfernt steht eine Villa mit Pool zum Verkauf, die eine perfekte Kombination aus modernem Design und Komfort darstellt. Die gesamte Nettofläche der Villa beträgt 229,

ANFRAGE SENDEN