Inquiry was successfully sent

New apartment near the sea and the center of Porec

  • ID :
    986766
  • City :
    POREČ
  • Size :
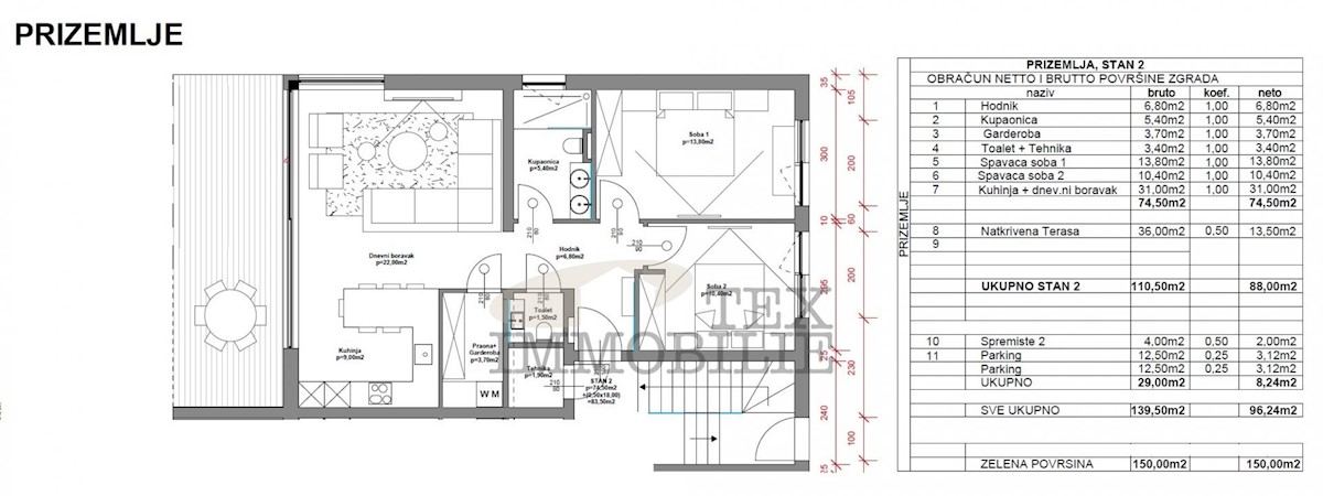
    89 m2
  • Agency :
    Tex immobilie

320.000 €

DESCRIPTION

An apartment located on the ground floor of a residential building consisting of five exceptional residential units is for sale. Situated in a quiet and peaceful location, just 2500 meters from the sea and simultaneously 2500 meters from the center of Por

SEND INQUIRY